yl6809永利
首頁
(current)
關於我們
公司簡介
集團概況
發展歷程
主要客户
企業榮譽
產品資訊
汽車馬達
汽車空調管路
研發實力
研發技術
實驗室實驗能力
人力資源
福利制度
加入yl6809永利
公司動態
公司新聞
公司通告
社會責任
聯繫我們
聯繫方式
資訊回饋
简
EN
简体
English
首頁
關於我們
產品資訊
研發實力
人力資源
公司動態
聯繫我們
新聞資訊
公司新聞
公司通告
社會責任
新聞資訊
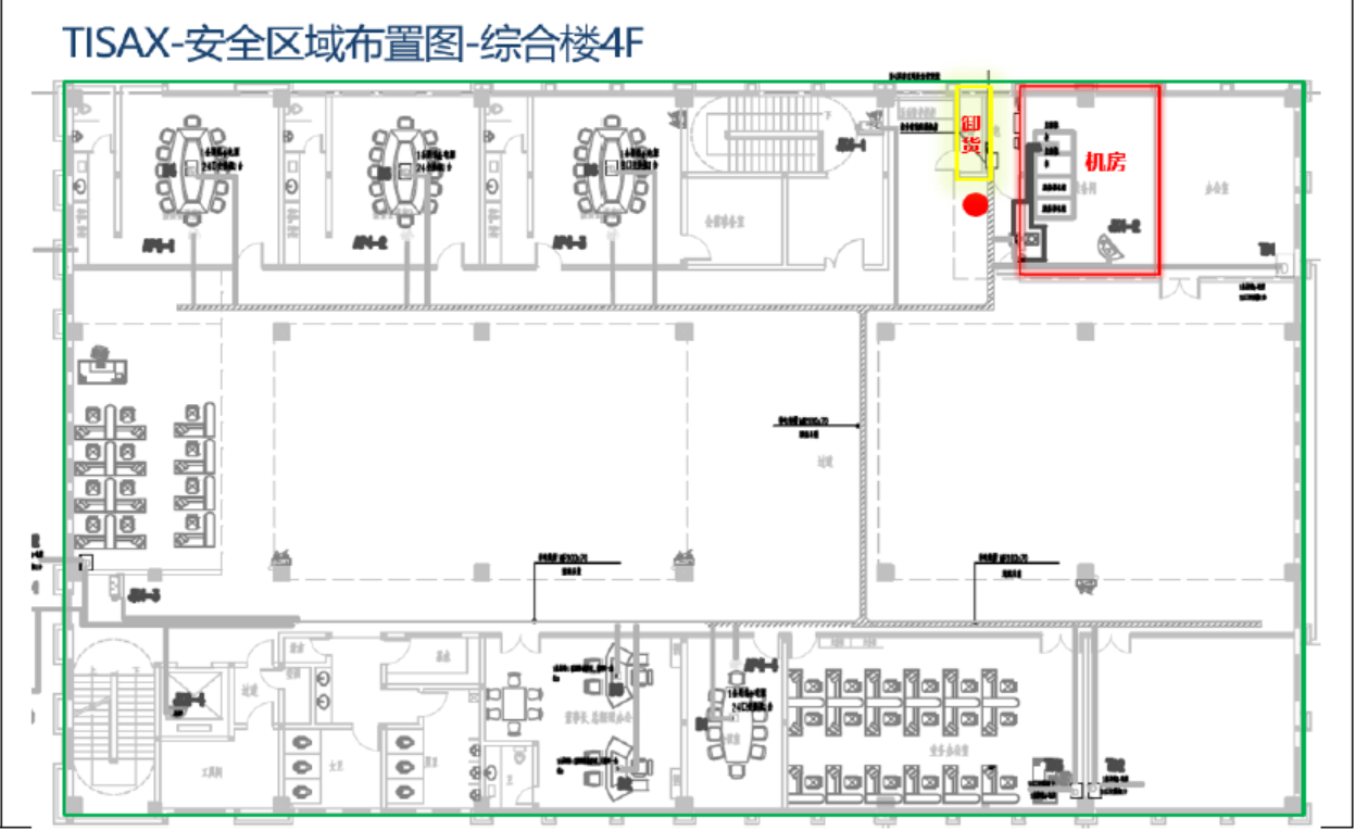
清静區域佈置圖
2023-02-18
治理部
2023年2月18日
返回
最新文章推薦
2025資訊清静政策願景與目標
2025資安年度教育訓練計畫表
2024資訊清静政策願景與目標
2024資安年度教育訓練計畫表
資訊清静事务通報責任
【网站地图】
公司通告 - 福州yl6809永利工業有限公司